Boston Scientific’s Clonmel facility is a major medical technology campus and a global hub for the manufacture of life-saving devices. Established in 1998 and employing approximately 1,200 people, it is a significant presence in the region’s MedTech sector – and one that continues to grow.
In early 2023, Boston Scientific identified the need to expand their existing clean room facilities on site. The central requirement was to meet this at pace – without any disruption to live production.
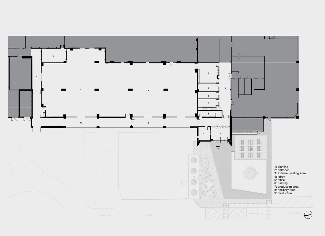
The scope of works included:
- Removal of the existing internal circulation corridor to accommodate the new CEA4 ISO 8 (Class 100,000) cleanroom – approximately 1,230m²
- Internal connection between the CEA3 and CEA4 cleanrooms
- A new external circulation route to replace the displaced corridor
- A purpose-built employee entrance and security office
- Enhancement of the public realm at the employee entrance and bistro
Designing a manufacturing space – particularly a cleanroom – presents a distinctive architectural challenge. The demands of the production environment and the needs of the people working within it can pull in opposite directions. Here, the ambition was to serve both: creating bright, light-filled spaces where every opportunity for glazing and natural light was taken, without compromising the controlled environment the manufacturing process requires.
The new circulation corridor was designed to make full use of natural light, giving building users a moment to engage with the external environment as they move through the building. The employee entrance plaza is finished in high-quality hard landscaping, complemented by natural planting – a considered arrival experience for staff and visitors alike.
The project was completed on programme and within budget. The response from Boston Scientific management and staff has been strongly positive – a result, the team believes, of keeping people at the centre of a brief that could easily have been defined by its technical constraints alone.









